Tökéletes helyen, jó állapotú vendéglátó egység eladó!

4509 Nyomtatás Ajánlás Facebook

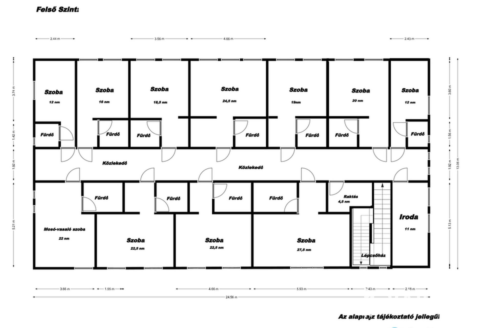
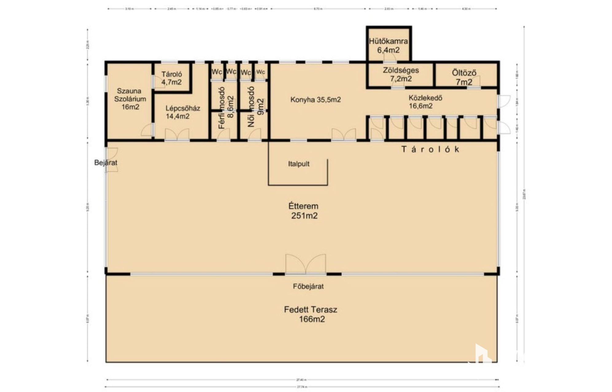
Nagykanizsától pár percre gépkocsival, közvetlen nagy forgalmú fő út szomszédságában vált eladóvá ez a lehetőségekkel teli vendéglátó egység. Funkcionálisan használható kisebb-nagyobb rendezvények lebonyolítására, (lakodalom, születésnapok, céges rendezvények..stb) valamint akár a lokációjának köszönhetően melegkonyhás étteremként és panzióként is üzemeltethető. Étterem rész befogadó képesége 180 fő, a terasz pedig további 100 fő vendég leültetésére alkalmas. A felső szinten található szobák pedig maximum 30 fő ott alvására lett kialakítva. Maga az épület beton alappal, tégla falazattal, cserép tetőfedéssel került megépítésre a 2000-es évben. Az ingatlanhoz érve léphetünk be egy közel 170m2-es fedett teraszra, ahonnan a főbejárati ajtón áthaladva érkezünk az épület központi részébe, mely 251m2-es nagyságának köszönhetően akár étterem akár rendezvényteremként is használható. Ezen légtérből megközelíthető meg a felső szint is ahol 10 külön bejáratú szoba saját vizesblokkal került kialakításra, valamint még ezen szinten háztartási helység és iroda is megtalálható. Az ingatlan teljesen klimatizált. (alsó szint, felső szint minden szoba külön-külön). Az alsó szintre visszatérve található még egy női és egy férfi illemhelység, egy nagy konyha a hozzá tartozó helységekkel és tárólokkal, hűtőházzal, személyzeti öltözővel. Az éttermi részen a dolgozok munkáját segíti, egy igényes nagy italpultrendszer is melyhez kis ablakon keresztük konyhakapcsolat is tartozik. Az ingatlan fűtése egyedi gáz cirkó, mely radiátorok és padlófűtésen keresztül szolgáltatja a meleget.
Alsó szint helységei: étterem, konyha, közlekedő, italraktár, raktár, száraz árú raktár, takarító raktár, gépészeti helység, zöldséges, öltöző, hűtőház, női-férfi illemhelység, lépcsőház, szauna-szolárium szoba.
Felső szint: közlekedő, iroda, 8 külön bejáratú szoba saját vizesblokkal, háztartási helység, szolgálati helység. Az ingatlan környezete parkosított, gépkocsival körbejárjató. A vendégek részére térkőburkolattal ellátott parklók állnak rendelkezésre. Az ingatlanhoz tartozik még egy külön telek is ami az épület közvetlen szomszédságában található így bármikor van lehetőség a
bővítésre. Ha Ön szeretne egy lehetőségekben gazdag jó befektetési ingatlant, melyhez az engedélyek is rendelkezésre állnak, akkor ez kiváló választás lehet.
Iroda: Nagykanizsa Platán sor 7

Hohl József
PRÉMIUM

Hohl József

10 éve a Városi Ingatlaniroda tagja
Régióigazgató
Nagykanizsa
+36 (30) 608 6857
Észrevétel a hirdetéssel kapcsolatban
Egy ingatlanos naplója