Nagy telkes, szuterénes családi ház eladó

3799 Nyomtatás Ajánlás Facebook

Különleges lehetőség az Erdőskert városrész szívében!

Budapest XVIII. kerületének egyik legkedveltebb, zöldövezeti részén, az Erdőskert városrészben kínálunk megvételre egy háromszintes, jó állapotú rendezett környezetű családi házat, mely elrendezésének és sokoldalú lehetőségeinek köszönhetően ideális választás lehet többgenerációs családoknak vagy akár vállalkozási célra is.
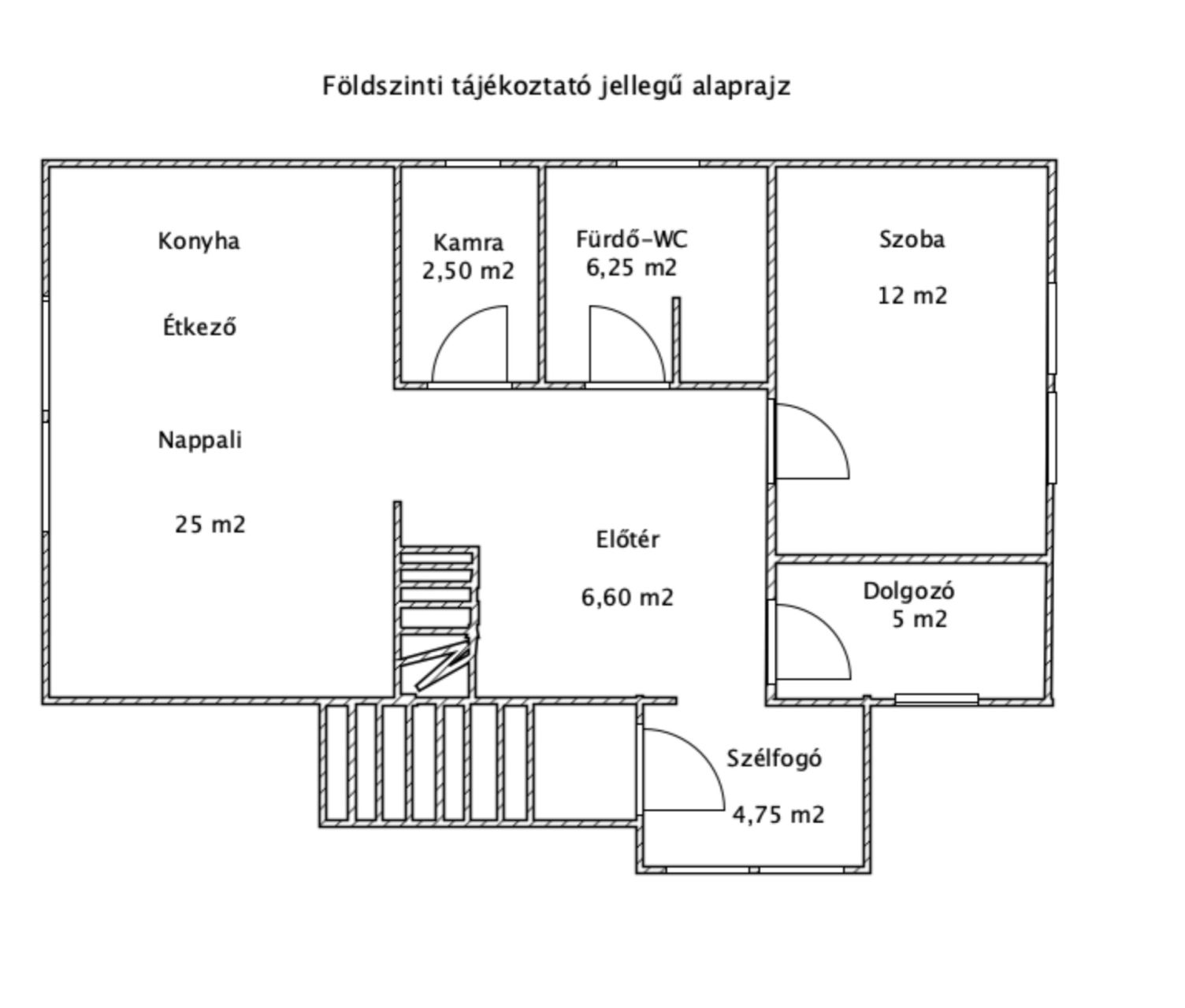
156 m² összterület: ebből 100 m² lakótér, + 56 m² szuterén, amely szintén lakhatásra vagy üzleti célra is hasznosítható
909 m²-es nagy méretű telek, amelyre igény szerint további beépítési lehetőség vár az új tulajdonosra
3 szoba + amerikai konyhás nappali
2 fürdőszoba + külön WC
Szuterénben 3,16 m belmagasság, 2 bejárat( szabadon alakítható egyterű, csak a WC-mosdó helyiség van leválasztva).

Műszaki jellemzők, felújítások:
2015-ben új, hőszigetelt műanyag nyílászárók beépítése redőnnyel és szúnyoghálóval
2019-ben 10 cm-es dryvit hőszigetelés a kedvező energiafogyasztásért
Kettős fűtésrendszer: gázcirkó és vegyes tüzelésű kazán (szuterénben)
Különálló, 20 m²-es könnyűszerkezetes garázs

Parkolás, megközelítés: Az ingatlan szabadon álló,
2 nagykapun keresztül megközelíthető udvar
5–6 gépkocsi részére kialakított beállási lehetőség viacolor térburkolat,
Kiváló közlekedés – a belváros gyorsan elérhető, közelben buszmegálló, iskola, óvoda, üzletek

Élet a természet ölelésében:

A csendes, családi házas utcában fekvő ingatlan nyugodt, zöld környezetet biztosít, ahol a pihenés és a természet közelsége a mindennapok része lehet. A tágas udvar gyermekeknek, kertészkedéshez vagy akár kisállatoknak is ideális.

Extra lehetőség: üzleti célú hasznosítás

A szuterén külön bejárattal, nagy belmagassággal (3,16 m) és saját WC-mosdóval kiválóan alkalmas iroda, műhely, rendelő vagy más vállalkozás kialakítására – akár az otthon kényelmének feladása nélkül.

Legyen Öné ez a kivételes otthon!

Ne hagyja ki ezt a ritka lehetőséget – tekintse meg személyesen, és tapasztalja meg, milyen érzés lehet az Erdőskertben élni!

Várom hívását, egyeztessünk megtekintési időpontot!

Meszesánné Márki Ildikó
PRÉMIUM

Meszesánné Márki Ildikó

12 éve a Városi Ingatlaniroda tagja
Ingatlanértékesítő
Gyál
+36 (20) 388 3540
Észrevétel a hirdetéssel kapcsolatban
Egy ingatlanos naplója