Belváros közeli lakás csendes környéken

595 Nyomtatás Ajánlás Facebook

Eladó tégla lakás a belváros közelében!

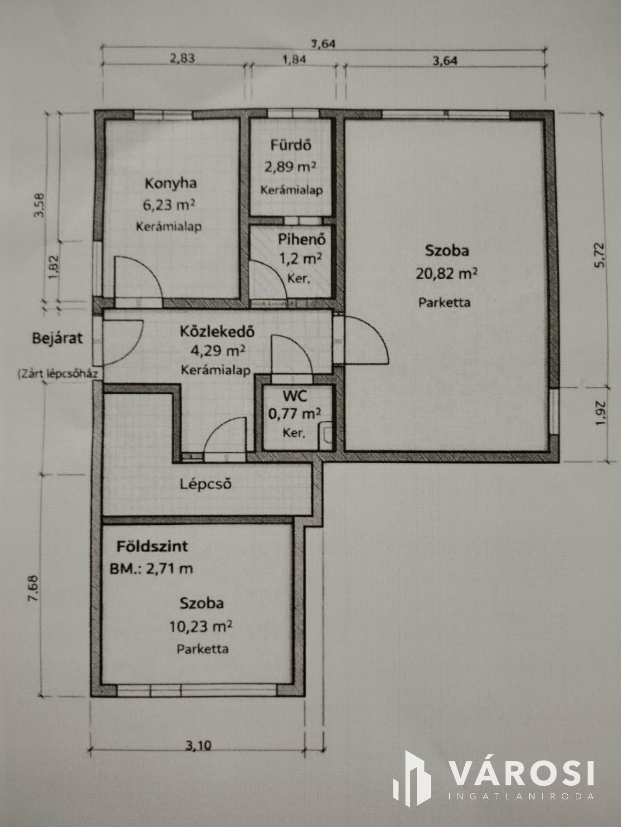
Ha Nagykanizsa belvárosának csendes részén szeretne élni, akkor Önre vár egy felújításra váró 2 szobás lakás a Berzsenyi utcában. A földszinti elhelyezkedésű, 52 m²-es tégla lakást elsősorban fiatalok részére ajánlom, hiszen lakáson belül a hálószoba fél szinttel feljebb található, ami különleges hangulatot ad az ingatlannak, és így a hálótér teljesen elkülöníthető a többi helyiségtől.
A lakás elrendezése ideális egyedülállóknak vagy fiatal pároknak egyaránt. Helyiségei, egy tágas nappali, egy hálószoba, konyha, fürdőszoba, WC és közlekedő. A fürdőszoba bejárata előtti pihenőben és a közlekedőben is beépített szekrény van, melyek remek pakolási lehetőséget biztosítanak. A fürdőszobában egy korábbi felújítás alkalmával a kádat zuhanyfülkére cserélték, a falak és a padlózat új burkolatot kapott. A hálószoba ablakának kivételével műanyag ablakok kerültek beépítésre. A redőnyök és az új nyílászárók biztosítják a kényelmet és a hangszigetelést. A lakás külső hőszigeteléssel is rendelkezik, amely hozzájárul az alacsony fenntartási költségekhez. A meleget gázkonvektorok, a meleg vizet pedig gázbojler biztosítja.

További kiemelkedő jellemzők:
- Közös költség, 13.000 forint.
- Optikai internet kábel a gyors és stabil kapcsolathoz.
- Közös tároló, valamint saját tároló is rendelkezésre áll, így a tárolás sosem okoz majd problémát.
- Beépített szekrény, amely maximális helykihasználást biztosít.

Az ingatlan elhelyezkedése páratlan: a belváros közelsége miatt minden fontos szolgáltatás és szórakozási lehetőség gyalogosan is könnyen elérhető. Csendes utca, barátságos szomszédokkal – itt igazán otthon érezheti magát!

Ne hagyja ki ezt a remek lehetőséget! Alakítsa át ezt a lakást álmai otthonává! Érdeklődés esetén kérjük, vegye fel velünk a kapcsolatot, hogy személyesen is megtekinthesse ezt a nagyszerű adottságokkal rendelkező ingatlant.

Somogyi Anikó

Somogyi Anikó

Ingatlanértékesítő
Nagykanizsa
+36 (30) 378 0702
Észrevétel a hirdetéssel kapcsolatban
Egy ingatlanos naplója